您的位置: 首页 办事服务 > 规划公开
    关于核发辽宁镁高镁冶金科技发展有限公司年产1万吨镁、铝粉项目《建设工程规划许可证》的公告
    时间:2026-02-04来源:市自然资源局二分局作者:点击:

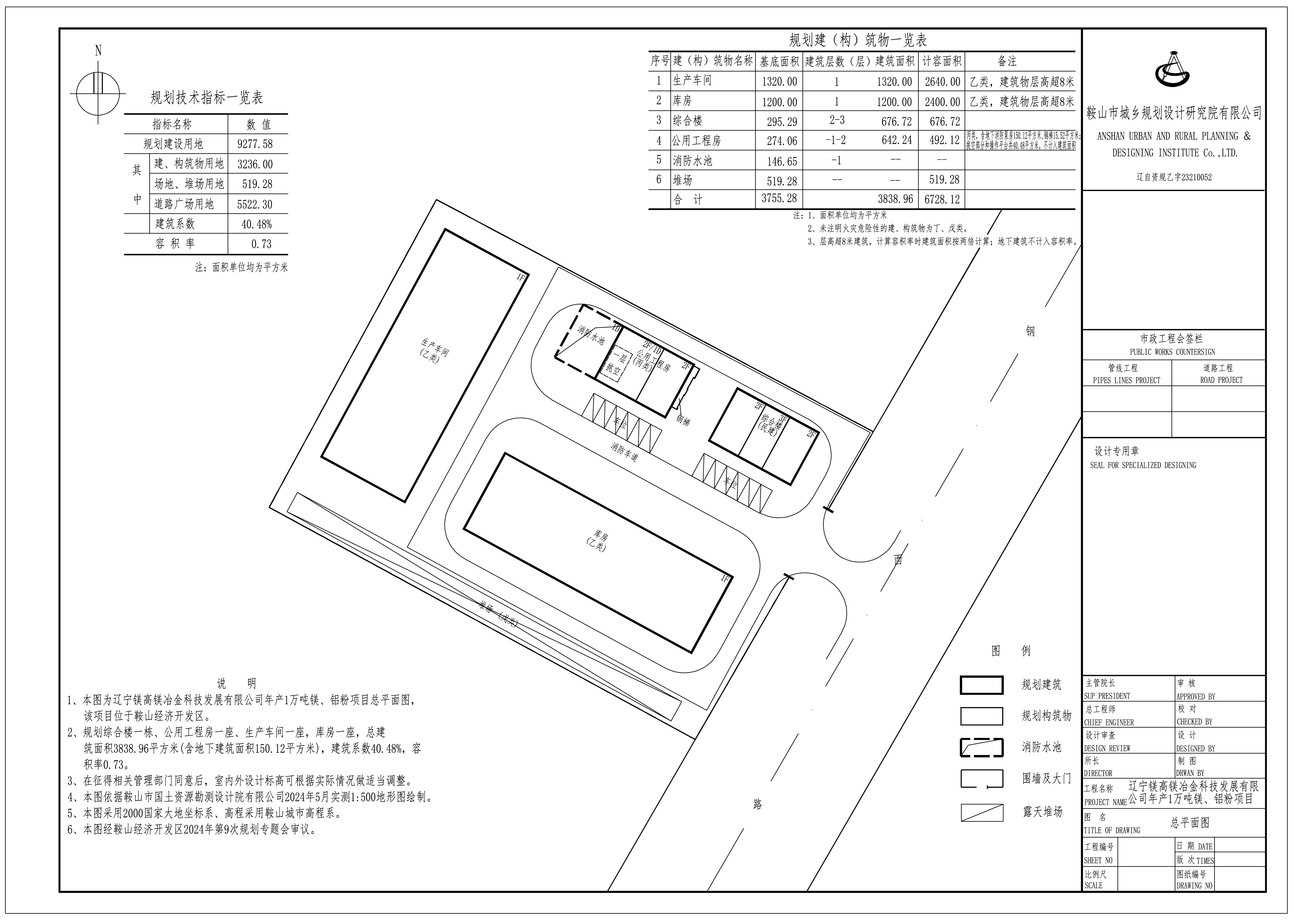
    根据《中华人民共和国城乡规划法》第四十条的有关规定,已依法核发辽宁镁高镁冶金科技发展有限公司年产1万吨镁、铝粉项目《建设工程规划许可证》。现将有关情况公告如下:

    许可事项:建设工程规划许可证

    许可证号:建字第2103032026GG0001634号

    项目名称:年产1万吨镁、铝粉项目

    建设位置:鞍山经济开发区钢西路西、富唐化工北

    建设单位:辽宁镁高镁冶金科技发展有限公司

    批后公告.jpg