您的位置: 首页 办事服务 > 规划公开
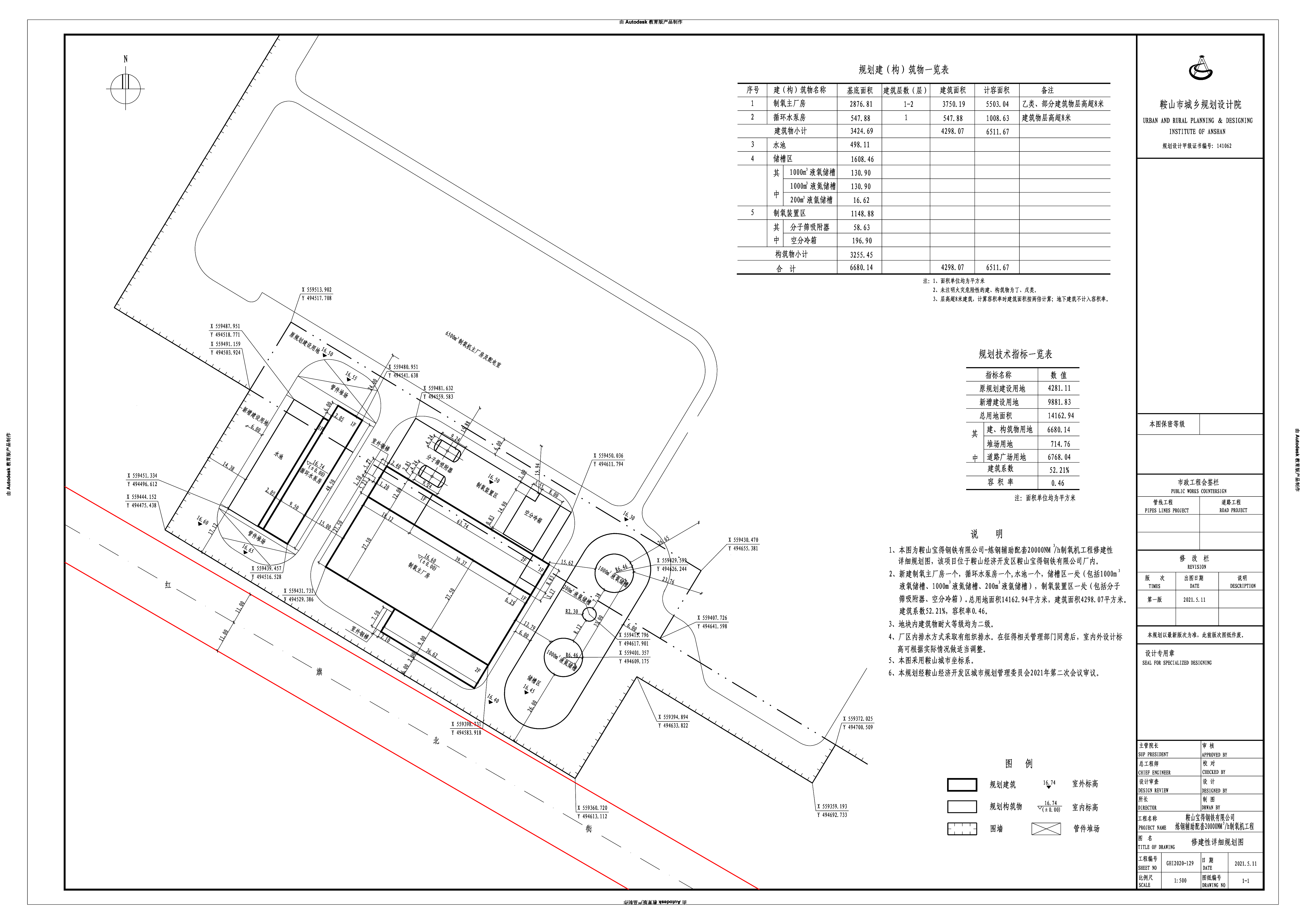
    关于核发鞍山宝得钢铁有限公司炼钢辅助配套20000NM3/h制氧机工程《建设工程规划许可证》的公告
    时间:2024-12-05来源:市自然资源局二分局作者:点击:

    根据《中华人民共和国城乡规划法》第四十条的有关规定,已依法核发鞍山宝得钢铁有限公司炼钢辅助配套20000NM3/h制氧机工程的《建设工程规划许可证》。现将有关情况公告如下:

    许可事项:建设工程规划许可证

    许可证号:建字第2103032024GG0015451号

    项目名称:炼钢辅助配套20000NM3/h制氧机工程

    建设位置:鞍山经济开发区建设大道西

    建设单位:鞍山宝得钢铁有限公司

    附件:鞍山宝得钢铁有限公司制氧机工程